Featured Coach Projects

Projects shown have been designed under creative direction of Tapestry Architecture.

 
 

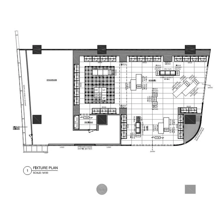
Aeon Mall 1

Located in Cambodia; 1883 SF. Opening Date: October 15, 2020.

 

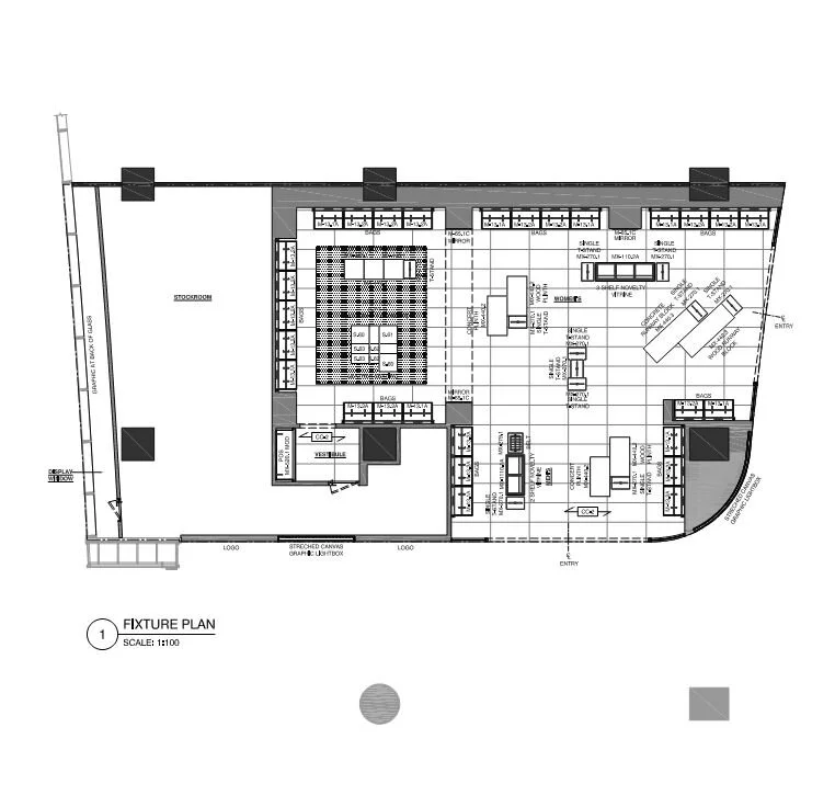
Pondok Indah

Located in Jakarta, Indonesia; 2851 SF. Opening Date: April 1, 2021.

 

Delipark Medan

Located in Medan, Indonesia; 2475 SF. Opening Date: April 1, 2021.